Проект таунхауса на две семьи из сип панелей-SIP202
Все чаще заказчики консолидируются и заказывают строительство дома из сип панелей сразу на две семьи, что обусловлено значительным снижением финансовой нагрузки на отдельно взятую семью.
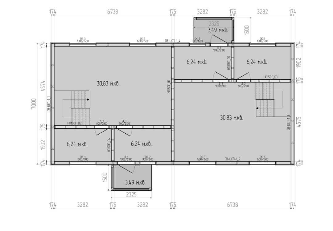
Удобные и продуманные планировки дома, отдельный вход в жилую зону и разграничение технических помещений с.у. и котельных, все это способствует комфортному проживанию семей и беспроблемной эксплуатации загородного дома расположенного на одном земельном участке.
Учитывая законодательные поправки внесенные в последние годы, в строительстве таунхаусов существуют небольшие нюансы, которые достаточно легко можно соблюдать без нарушений со стороны законодательной базы и без увеличения финансовой составляющей.
Удобные и продуманные планировки дома, отдельный вход в жилую зону и разграничение технических помещений с.у. и котельных, все это способствует комфортному проживанию семей и беспроблемной эксплуатации загородного дома расположенного на одном земельном участке.
Учитывая законодательные поправки внесенные в последние годы, в строительстве таунхаусов существуют небольшие нюансы, которые достаточно легко можно соблюдать без нарушений со стороны законодательной базы и без увеличения финансовой составляющей.
проект:_ _ _ _SIP 202
площадь:_ _ _202 м2
спален:_ _ _ _ _ _ _ _6
с.у:_ _ _ _ _ _ _ _ _ 4
цена: от 3.2 - 6.6 млн
проект дома sip202
проект дома sip202
проект дома sip202
проект дома sip202
проект дома sip202
проект дома sip202
проект дома sip202
Записаться на экскурсию в выставочный коттедж
Приглашаем в наш выставочный коттедж для ознакомления с технологией строительства дома и просмотра готовых проектов домов с точной сметной стоимостью строительства.
© 2016-2025 Все права защищены.