ПРОЕКТ ОДНОЭТАЖНОГО ДОМА ИЗ СИП ПАНЕЛЕЙ С ДВУСКАТНОЙ КРЫШЕЙ-SIP108
Традиционная форма жилого дома для постоянного проживания из сип панелей в один этаж по приемлемой стоимости.
Предлагаем нашим заказчикам воспользоваться услугами наших специалистов и построить себе дом на лоне природы из качественных материалов в комплектации под ключ без участия посредников.
Учитывая специфику компании и продолжительный опыт работы на рынке загородного домостроения, вы можете воспользоваться нашими услугами и заказать проектирование дома по индивидуальным запросам без увеличения итоговой стоимости и оплаты проектных работ в рамках договора на строительство.
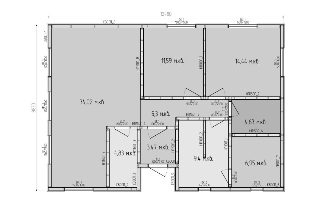
проект:_ _ _ _SIP 108
площадь:_ _ _108 м2
спален:_ _ _ _ _ _ _ _3
с.у:_ _ _ _ _ _ _ _ _ 1
цена: от 3.2 - 4.9 млн
проект дома sip108
проект дома sip108
проект дома sip108
проект дома sip108
проект дома sip108
проект дома sip108
проект дома sip108
Записаться на экскурсию в выставочный коттедж
Приглашаем в наш выставочный коттедж для ознакомления с технологией строительства дома и просмотра готовых проектов домов с точной сметной стоимостью строительства.
© 2016-2025 Все права защищены.