Телефон: 
8-812-425-13-05
Email: 
info@dskveles.ru
Часы работы: 

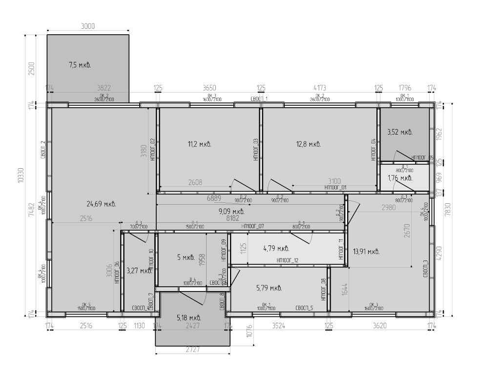
Одноэтажный дом из СИП со сметой-SIP121

Классическая архитектура одноэтажного дома нисколько не умаляет его архитектурных форм, а только подчеркивает индивидуальность всем привычных форм что стало возможным благодаря подбору и комбинации сочетания отделочных материалов.

Просторный дом, панорамные окна, три спальных комнаты и достаточно большая площадь кухни-гостиной и все это по цене стоимости как минимум в два раза меньшей нежели стоимости самой обычной однокомнатной квартиры даже с учетом стоимости материалов внутренней отделки дома и инженерных сетей.
Качественно построенный дом из сип панелей делает его не только одним из самых теплых домов, но и позволяет возвести загородное строение в кротчайшие сроки и ввести в эксплуатацию уже через 2-3 месяца после начала строительных работ на объекте.
 



проект:_ _ _ _SIP 121

площадь:_ _ _121 м2

спален:_ _ _ _ _ _ _ _3

с.у:_ _ _ _ _ _ _ _ _ 1

цена: от 3.6 - 5.5 млн

Записаться на экскурсию в выставочный коттедж

Приглашаем в наш выставочный коттедж для ознакомления с технологией строительства дома и просмотра готовых проектов домов с точной сметной стоимостью строительства.
Написать в чат
Позвонить в ДСК ВЕЛЕС